En pré-commercialisation

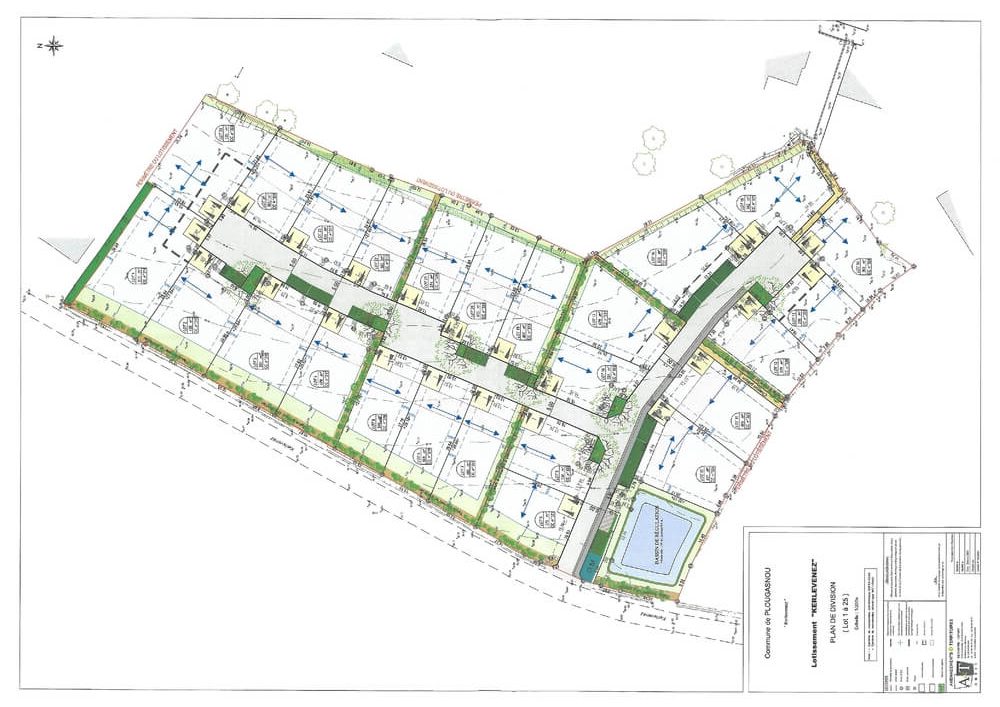
Lotissement de 25 lots situés sur la Route de Kerlévénez à Plougasnou. Projetez-vous dans cette ville dynamique et recherchée entre terre et mer. Idéalement situé à seulement 2 km de la mer et 1 km du centre-ville et de toutes ses commodités : Ecole primaire et maternelle, infrastructures sportives, restaurants et grande surface alimentaire. Ce lotissement offre un cadre calme et familial. Les lots d’une superficie comprise entre 295 et 613 m² entre 44 250 et 91 950€.
À partir de 44 250 €
Terrains programme résidence Le Hameau de Kerlévénez.
Prix du terrain viabilisé, hors frais de notaire.
| LOTS | SUPERFICIE | PRIX | DISPONIBILITÉ |
|---|---|---|---|
| 1 | 613 | 79 690 | DISPONIBLE |
| 2 | 455 | 59 150 | DISPONIBLE |
| 3 | 551 | 79 000 | RÉSERVÉ |
| 4 | 479 | 62 270 | DISPONIBLE |
| 5 | 370 | 48 100 | DISPONIBLE |
| 6 | 389 | 50 570 | DISPONIBLE |
| 7 | 408 | 53 040 | RÉSERVÉ |
| 8 | 379 | 49 270 | RÉSERVÉ |
| 9 | 334 | 43 420 | RÉSERVÉ |
| 10 | 411 | 53 430 | DISPONIBLE |
| 11 | 400 | 52 000 | RÉSERVÉ |
| 12 | 379 | 49 270 | DISPONIBLE |
| 13 | 295 | 42 500 | RÉSERVÉ |
| 14 | 369 | 47 970 | RÉSERVÉ |
| 15 | 442 | 57 460 | DISPONIBLE |
| 16 | 535 | 69 550 | DISPONIBLE |
| 17 | 479 | 62 270 | DISPONIBLE |
| 18 | 324 | 43 000 | RÉSERVÉ |
| 19 | 407 | 52 910 | DISPONIBLE |
| 20 | 413 | 53 690 | DISPONIBLE |
| 21 | 374 | 48 620 | RÉSERVÉ |
| 22 | 380 | 49 400 | DISPONIBLE |
| 23 | 431 | 56 030 | DISPONIBLE |
| 24 | 380 | 49 400 | DISPONIBLE |
| 25 | 535 | 69 550 | DISPONIBLE |